Tom Kay Architect

1982-84 - Office building: Copthall Avenue, City of London EC2

The RIBA journal of 1983 wrote:

“These offices above a small bank, are located in a narrow street, 100m behind the Bank of England. In the 60s and 70s, much of the frontage was rebuilt on enlarged sites, undermining the quality of the street as a series of individual incidents.

“The two facades are treated as thick bread slices to a Dagwood sandwich of efficient space. The mullion clusters, varying in number from floor to floor, establish a legible hierarchy across the building surface; incidentally resolving the perennial bylaw chestnut requiring a solid return from the party wall, without resorting to a constantly expressed dimension throughout its height.”

Upon finishing the scheme design for this building, Tom had a serious motor cycle accident, which put him in hospital for almost two years. This put paid to the commission, as the the developer decided not to wait for him to recover and sold the site.

Structural engineers:
Anthony Hunt Associates

Services consultants:
Dale & Goldfinger

Quantity surveyors:
Brian Davis & Associates

01-Copthall Av

Street elevation

02-Copthall Av

Isometric study of the street elevation

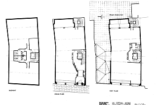
03-Copthall Av.-Plans, Base. Gd

Plans: Basement. Ground & 1st floors

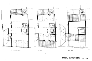
04-Copthall Av.-Plans, 2nd, 3rd, 4th

Plans: 2nd, 3rd & 4th floors

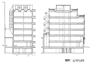
05-Copthall Av.-Sections

Sections